Sutton Lane, Sutton Benger, SN15

  • Guide Price £350,000
Sutton Lane, Sutton Benger, SN15

Overview

  • Land
  • Property Type
  • 4
  • Bedrooms
  • 2
  • Bathrooms

what3words Logowhat3words Property Location: crouching.spit.gaps

Description

AGENT NOTE: All site visits are to be accompanied by Ellis Smith Or Chris Pomphrey,
and offers should be submitted in writing to the sellers agent
by the 14th of January 2026, no later than 12pm.

A rare opportunity to acquire a prime site situated in the desirable village of Sutton Benger, a location well regarded for its strong community feel and convenient access to surrounding towns.

Sutton Benger offers a blend of rural charm and essential amenities, including a popular primary school, village hall, playground, tennis courts, recreation field, church, local pub and renowned restaurant, making it an attractive setting for a range of buyers.

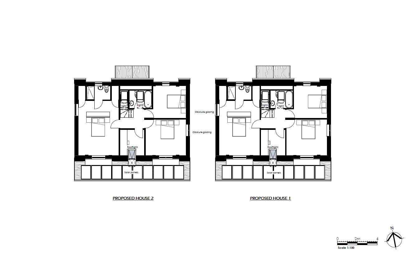
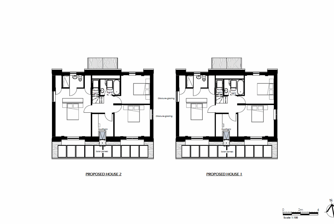
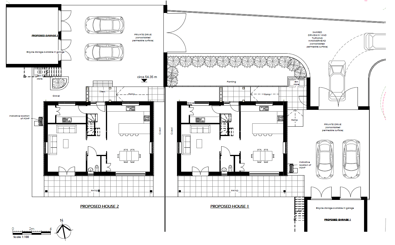
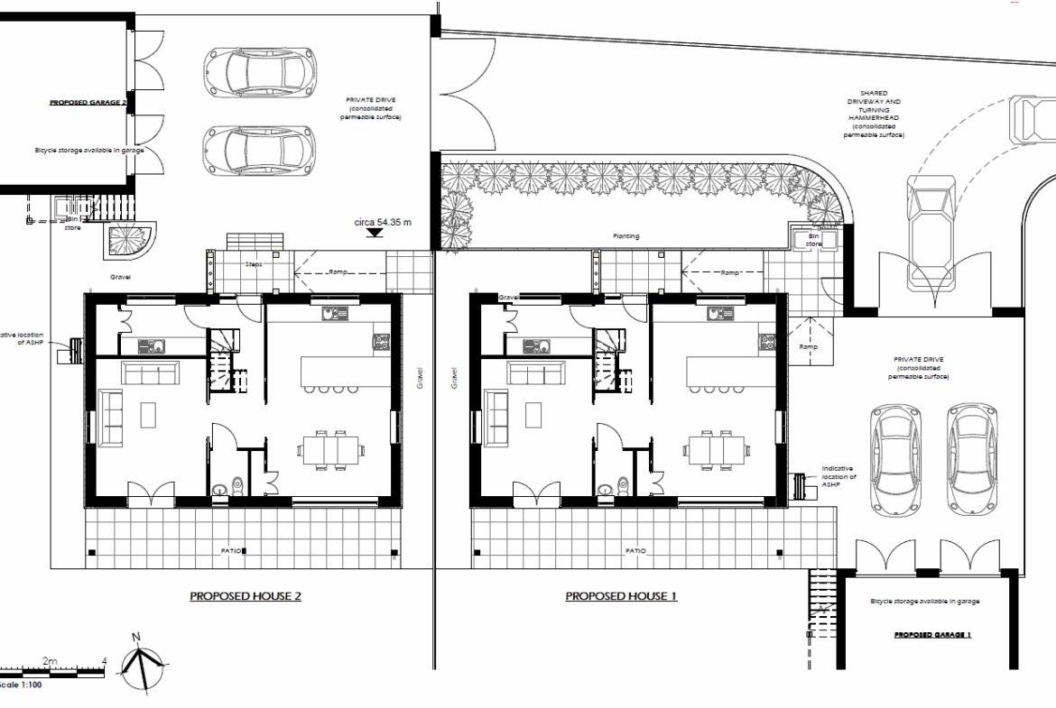
The site benefits from detailed planning permission for two 4-bedroom houses (ref: PL/2025/06181) and is well positioned for those seeking a balance between village living and connectivity.

Sutton Benger benefits from superb transport links, with easy access to the A350 and M4, providing direct routes to Chippenham, Bath, Bristol, and Swindon. Chippenham railway station, offering mainline services to London and the South West, is also within close reach.

Its strategic position and appealing village environment make this an exciting prospect for investors, developers, or self-builders.


Council Tax Band: TBC

Property Documents

suttonbengerlandbrochure2

Contact Information

View Listings

Enquire About This Property

Mortgage Calculator

Monthly
  • Deposit
  • Loan Amount
  • Monthly Mortgage Payment
£
%
%

Compare listings

Compare
Ellis Smith
  • Ellis Smith

Book a valuation with us

Please fill in the simple form and we will contact you to arrange a no-obligation valuation on your property as soon as we receive the details.

Not quite ready for a valuation? 

Thank you for signing up and referring a friend

Your details have been submitted successfully.