Swindon Street, Highworth, Swindon, SN6

  • £180,000
Swindon Street, Highworth, Swindon, SN6

Overview

  • Office
  • Property Type
  • 0
  • Bedroom
  • 0
  • Bathroom

what3words Logowhat3words Property Location: troubled.trendy.soups

Description

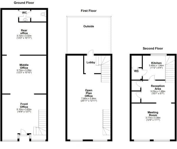
Offered for sale with no onward chain is this well positioned commercial unit in the heart of Highworth.

Exciting Investment Opportunity in the Heart of Highworth!

Offered for sale with no onward chain, this well-positioned, three-storey commercial unit is located in the thriving center of Highworth. Boasting excellent visibility and footfall, this versatile property provides an ideal opportunity for a variety of business uses.

Additionally, the unit holds significant development potential (subject to planning permission), offering scope for transformation to suit your specific needs. Whether you’re looking to expand your business or invest in future possibilities, this property presents a rare and exciting opportunity.

Contact us today for more information or to arrange a viewing!


Council Tax Band: TBC

Contact Information

View Listings

Enquire About This Property

Mortgage Calculator

Monthly
  • Deposit
  • Loan Amount
  • Monthly Mortgage Payment
£
%
%

Compare listings

Compare
Ellis Smith
  • Ellis Smith

Book a valuation with us

Please fill in the simple form and we will contact you to arrange a no-obligation valuation on your property as soon as we receive the details.

Not quite ready for a valuation? 

Thank you for signing up and referring a friend

Your details have been submitted successfully.