Tattershall, Toothill, Swindon, SN5

  • Offers In The Region Of £400,000
Tattershall, Toothill, Swindon, SN5
Sold STC West Swindon
Tattershall, Toothill, Swindon, SN5
Tattershall, Toothill, Swindon, SN5
  • Offers In The Region Of £400,000

Overview

  • House
  • Property Type
  • 5
  • Bedrooms
  • 3
  • Bathrooms

what3words Logowhat3words Property Location: hello.crowds.ending

Description

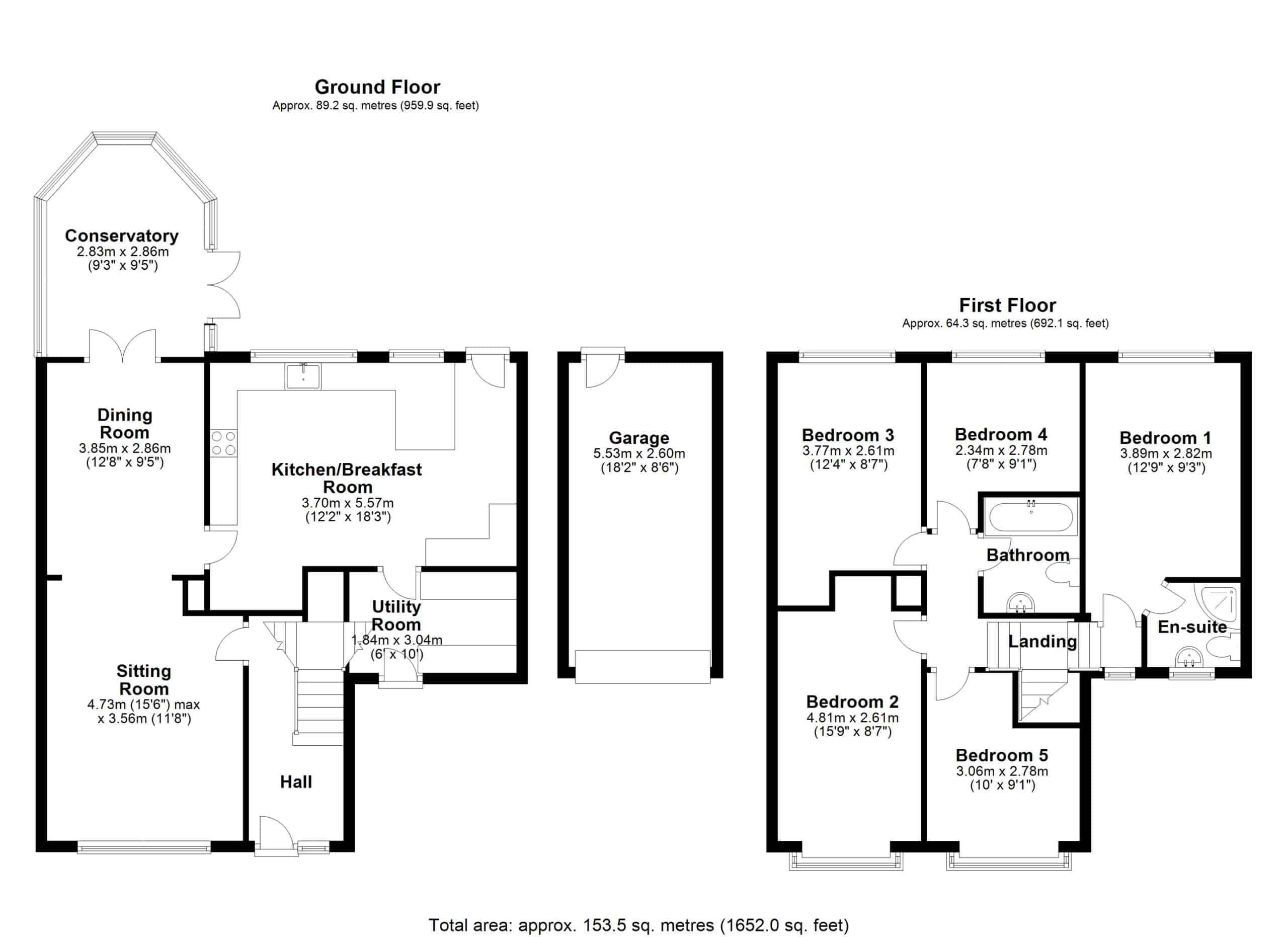
Situated in a quiet cul de sac, we are pleased to present this much improved an extended 5 bedroom en suite detached family home. The property benefits from uPVC double glazing, gas radiator central heating, cloakroom, sitting room, dining room, uPVC double glazed conservatory, re fitted kitchen/breakfast room, utility room, master bedroom with ensuite shower room, 4 other bedrooms, family bathroom with jacuzzi bath, garage and gardens. The property is well located for all local amenities, shops schools etc Lydiard Park and M4 J16. Viewing is highly recommended by the vendor’s sole agent.


Council Tax Band: D

Property Documents

EPC Rating Graph

Floor Plans

Floorplan
image

Description:

Contact Information

View Listings

Enquire About This Property

This property has now sold subject to contract. To view my other listings, click here.

Mortgage Calculator

Monthly
  • Deposit
  • Loan Amount
  • Monthly Mortgage Payment
£
%
%

Similar Listings

Compare listings

Compare
Barrie Brocks
  • Barrie Brocks

Book a valuation with us

Please fill in the simple form and we will contact you to arrange a no-obligation valuation on your property as soon as we receive the details.

Not quite ready for a valuation? 

Thank you for signing up and referring a friend

Your details have been submitted successfully.