The Green, Shrivenham, Swindon, SN6

  • Guide Price £280,000
The Green, Shrivenham, Swindon, SN6
For Sale Village & Country Homes Highworth and Surrounding Villages
The Green, Shrivenham, Swindon, SN6
The Green, Shrivenham, Swindon, SN6
  • Guide Price £280,000

Overview

  • House
  • Property Type
  • 3
  • Bedrooms
  • 1
  • Bathroom

what3words Logowhat3words Property Location: blank.theory.hints

Description

Three Bedroom Terrace Home with Garage and Driveway Located in the sought-after village of SHRIVENHAM, this modern three bedroom terrace property offers an excellent opportunity for buyers looking to move into this very popular Village. The home benefits from a garage to the front and is ideally positioned within easy reach of local amenities on the High Street, Schools, and Transport links. The accommodation comprises: entrance hall, living room, kitchen, 2 bedrooms and a bathroom to the first floor with a master bedroom to the second floor. The gardens are laid to lawn and enclosed by timber fencing. this property would make an ideal family home, first-time buy, or investment opportunity.


Council Tax Band: TBC

Property Documents

epc.png

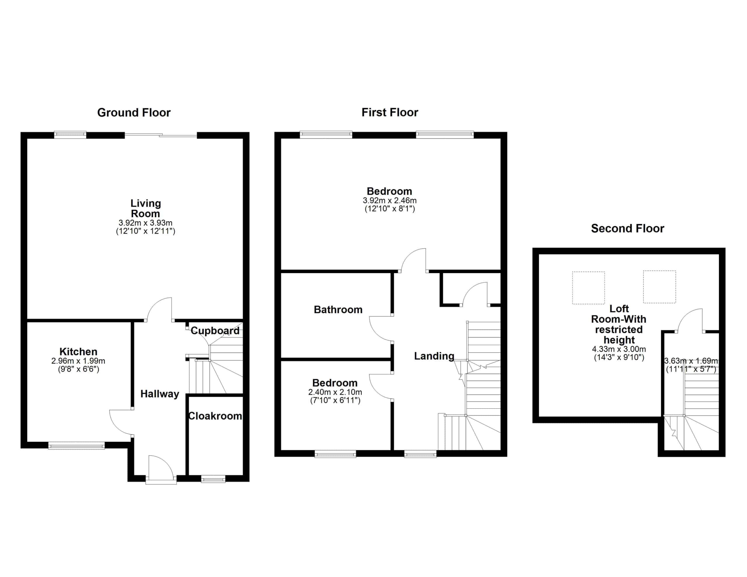
Floor Plans

Floorplan
image

Description:

Contact Information

View Listings

Enquire About This Property

Mortgage Calculator

Monthly
  • Deposit
  • Loan Amount
  • Monthly Mortgage Payment
£
%
%

Compare listings

Compare
Paul Lewis
  • Paul Lewis

Book a valuation with us

Please fill in the simple form and we will contact you to arrange a no-obligation valuation on your property as soon as we receive the details.

Not quite ready for a valuation? 

Thank you for signing up and referring a friend

Your details have been submitted successfully.