The Mead, Ashton Keynes, Wiltshire, SN6 6PL

  • £1,950/pcm
The Mead, Ashton Keynes, Wiltshire, SN6 6PL
To Let Village & Country Homes Cirencester and South Cerney
The Mead, Ashton Keynes, Wiltshire, SN6 6PL
The Mead, Ashton Keynes, Wiltshire, SN6 6PL
  • £1,950/pcm

Overview

  • House, detached
  • Property Type
  • 3
  • Bedrooms
  • 2
  • Bathrooms

what3words Logowhat3words Property Location: pulled.squeezed.shame

Description

A recently renovated THREE bedroom detached family home offered UNFURNISHED in the popular area of Ashton Keynes.

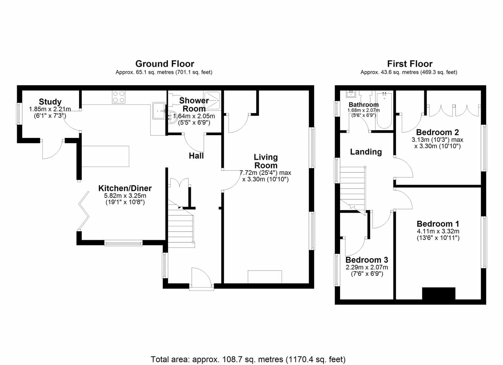
The property has undergone a full programme of refurbishment throughout including a new stunning open plan kitchen/diner with lantern roof light, study and downstairs shower room.

The entrance hallway is very spacious with porcelain tiled flooring and an understairs utility cupboard, providing plumbing for a washing machine, leading in to a large 25ft living room with marble fireplace complete with electric fire.

The brand new kitchen/diner is equipped with AEG built in appliances and bi-fold doors opening out on to a generous sized garden. The study has CAT cabling installed providing a wired internet connection.

On the first floor is a brand new modern bathroom with shower over, three double bedrooms with built in wardrobes to the principal bedroom. The bedrooms have all been newly carpeted.

The loft is fully boarded with lighting and accessed by a pull down ladder.

The detached garage has a new roof providing ample storage.

A large driveway to the front of the property provides ample off street parking for numerous cars.

Ashton Keynes is a desirable village located in the heart of the Cotswold Water Park.

The market town of Cirencester is a 10-minute drive away with a range of facilities and secondary schools. Swindon is a 20 minute drive away with train station and regular services to London Paddington. The village has excellent access to the A419, M4 and M5.

Available Immediately!

Deposit – £2250

Council Tax Band C


Deposit: £2250
Council Tax Band: C

Property Documents

EPC Rating Graph

Features

Floor Plans

Floorplan
image

Description:

Contact Information

View Listings
Swindon Property Lettings Office

Enquire About This Property

If you would like to view this property please click the below button:

Compare listings

Compare
Swindon Property Lettings Office
  • Swindon Property Lettings Office

Book a valuation with us

Please fill in the simple form and we will contact you to arrange a no-obligation valuation on your property as soon as we receive the details.

Not quite ready for a valuation? 

Thank you for signing up and referring a friend

Your details have been submitted successfully.