The Peak, Purton, SN5

  • Guide Price £215,000
The Peak, Purton, SN5

Overview

  • Bungalow
  • Property Type
  • 2
  • Bedrooms
  • 1
  • Bathroom

what3words Logowhat3words Property Location: streak.farms.operation

Description

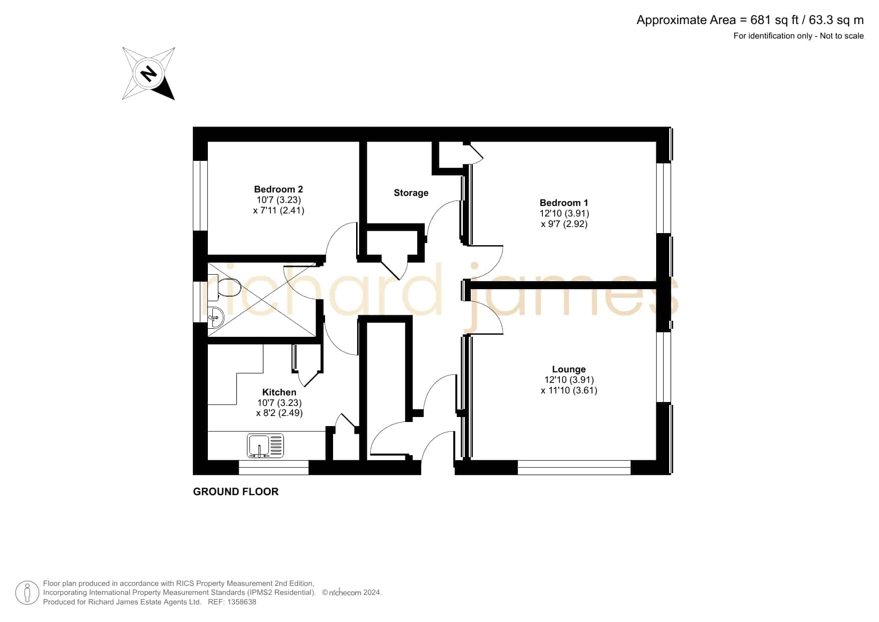
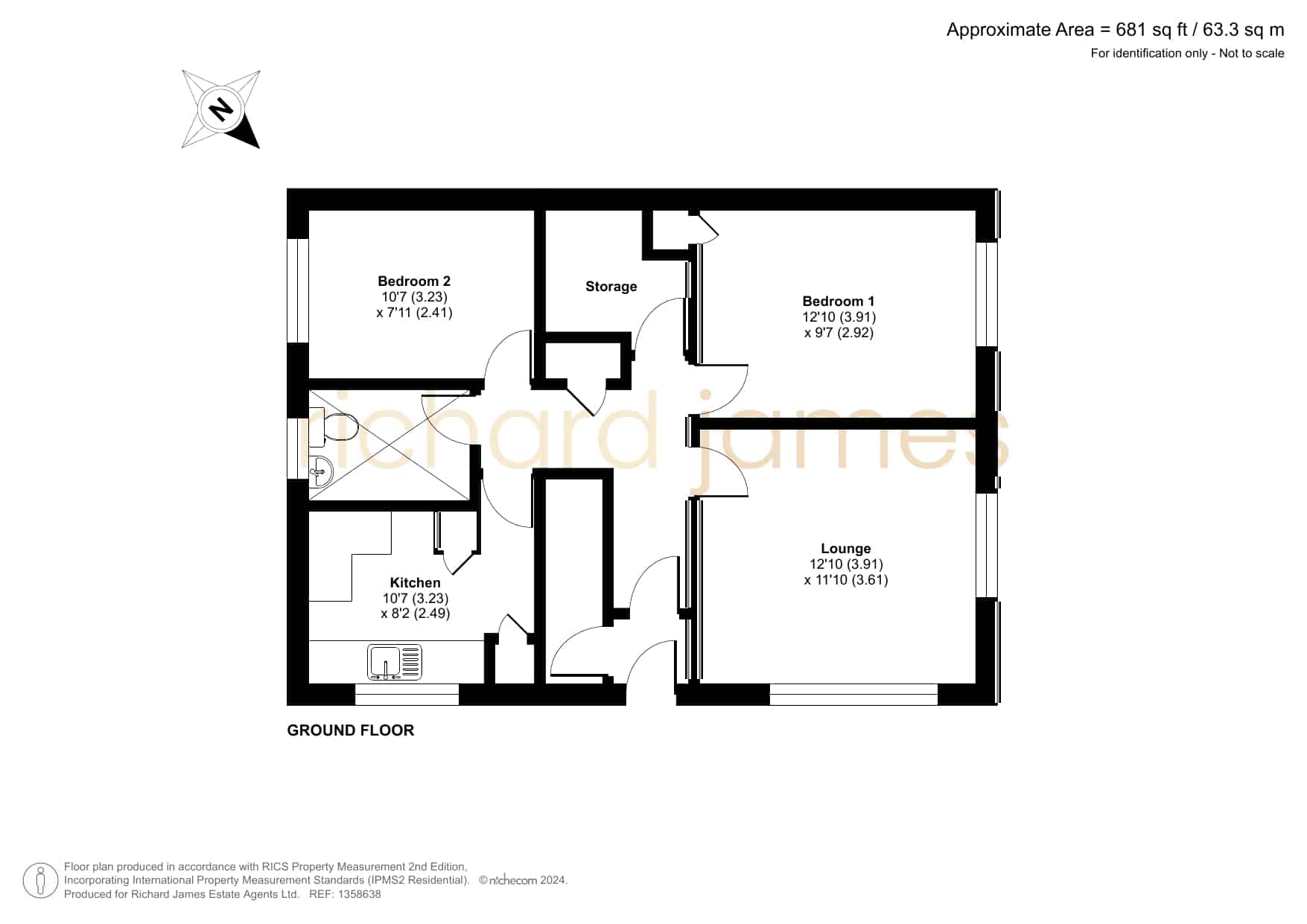
This chain-free, semi-detached bungalow in Purton offers two double bedrooms and a dual aspect living room, with an additional room ideal as a study or storage. It features modern electric heating and provides a blank canvas for personalisation. The property boasts private enclosed gardens on three sides and potential for driveway parking. Located in a popular village with local shops, pubs, a church, and excellent road links to nearby towns, this home combines tranquillity with convenience.

Located in the heart of a popular village, this chain-free semi-detached bungalow offers an inviting opportunity for those seeking a tranquil yet connected lifestyle. The property presents itself as a blank canvas for you to create your ideal home, featuring two spacious double bedrooms and a versatile additional room that can effortlessly transform into a cosy study or be utilised as a generous storage space. The dual aspect living room is filled with natural light, providing a warm and welcoming environment to entertain guests or relax with the family. With modern electric heating throughout, comfort and efficiency blend seamlessly to ensure a pleasant living experience all year round.

Outside, the bungalow is accessed via a walkway and is surrounded by private, enclosed gardens on three sides. These gardens offer ample scope for gardening enthusiasts or simply a serene spot to unwind and enjoy the outdoors in privacy. For those with aspirations of expanding their parking options, there’s also the potential to create driveway parking to the side, enhancing convenience and accessibility. This external space not only elevates the property’s appeal but also provides room for future development should you wish to personalise further.

Positioned in the sought-after village of Purton, this property benefits from a delightful, community-centric location with an array of local amenities. Residents can enjoy proximity to local shops, pubs, and the village church, coupled with easy access to picturesque open spaces ideal for leisurely strolls or outdoor activities. Despite its village charm, Purton is well-serviced by excellent road links, ensuring swift connections to nearby towns that offer an even wider selection of shopping, dining, and leisure amenities. Offering both a peaceful retreat and convenience, this property is perfectly placed for those looking to embrace village life with modern comforts.

The vendor has advised this property has a Service Charge which is circa £8.81 per month.


Council Tax Band: B

Property Documents

property_brochure_-_2026-03-30t145553.942.pdf

Floor Plans

Floorplan
image

Description:

Contact Information

View Listings
Emma Middleton

Enquire About This Property

Mortgage Calculator

Monthly
  • Deposit
  • Loan Amount
  • Monthly Mortgage Payment
£
%
%

Similar Listings

Compare listings

Compare
Emma Middleton
  • Emma Middleton

Book a valuation with us

Please fill in the simple form and we will contact you to arrange a no-obligation valuation on your property as soon as we receive the details.

Not quite ready for a valuation? 

Thank you for signing up and referring a friend

Your details have been submitted successfully.