The Shearings, Old Town, Swindon, SN1

  • Guide Price £300,000
The Shearings, Old Town, Swindon, SN1
Sold STC Old Town Swindon
The Shearings, Old Town, Swindon, SN1
The Shearings, Old Town, Swindon, SN1
  • Guide Price £300,000

Overview

  • House
  • Property Type
  • 3
  • Bedrooms
  • 2
  • Bathrooms

what3words Logowhat3words Property Location: focal.worked.media

Description

**GUIDE PRICE £300,000 – £325,000**
Tucked away down a quiet road in Old Town, Swindon, this beautifully decorated three-bedroom semi-detached townhouse offers a perfect blend of modern style and comfortable living.

**GUIDE PRICE £300,000 – £325,000**
Tucked away down a quiet road in Old Town, Swindon, this beautifully decorated three-bedroom semi-detached townhouse offers a perfect blend of modern style and comfortable living.

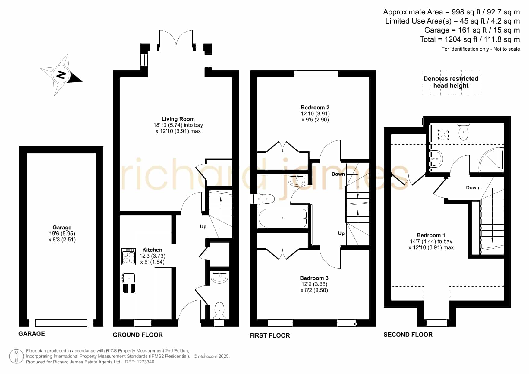
The current owner has tastefully updated the home throughout, creating a welcoming and contemporary space that’s ready to move into. On the ground floor, you’ll find a modern kitchen at the front of the property, a convenient downstairs WC, and a handy storage cupboard. To the rear, the spacious lounge/diner opens through French doors to the garden, bringing in plenty of natural light and creating a lovely indoor-outdoor feel.

The garden is low-maintenance and thoughtfully finished with patio, providing a great space to relax or entertain with minimal upkeep.

On the first floor are two generous double bedrooms and a family bathroom. At the top of the home is the impressive master bedroom, a large and airy space with plenty of room for wardrobes and an en-suite shower room.

The property also benefits from a single garage – a rare feature in this part of Old Town.

A bit of modern charm in a characterful area, this home is ideal for those looking to enjoy the lifestyle Old Town has to offer, all from a quiet and tucked-away location.


Council Tax Band: TBC

Property Documents

epc.png

Floor Plans

Floorplan
image

Description:

Contact Information

View Listings
Isobel Bowles

Enquire About This Property

This property has now sold subject to contract. To view my other listings, click here.

Mortgage Calculator

Monthly
  • Deposit
  • Loan Amount
  • Monthly Mortgage Payment
£
%
%

Similar Listings

Compare listings

Compare
Isobel Bowles
  • Isobel Bowles

Book a valuation with us

Please fill in the simple form and we will contact you to arrange a no-obligation valuation on your property as soon as we receive the details.

Not quite ready for a valuation? 

Thank you for signing up and referring a friend

Your details have been submitted successfully.