Thorney Park, Wroughton, Swindon, SN4

  • Guide Price £180,000
Thorney Park, Wroughton, Swindon, SN4
Sold STC Village & Country Homes Wroughton and Chiseldon
Thorney Park, Wroughton, Swindon, SN4
Thorney Park, Wroughton, Swindon, SN4
  • Guide Price £180,000

Overview

  • House
  • Property Type
  • 2
  • Bedrooms
  • 2
  • Bathrooms

what3words Logowhat3words Property Location: dice.stones.violin

Description

** Guide Price £180,000 – £200,000 **
Located in Thorney Park, Wroughton, this 2/3-bedroom end-of-terrace property is in need of renovation, offering fantastic potential.

** Guide Price £180,000 – £200,000 **
Located in Thorney Park, Wroughton, this 2/3-bedroom end-of-terrace property is in need of renovation, offering fantastic potential.

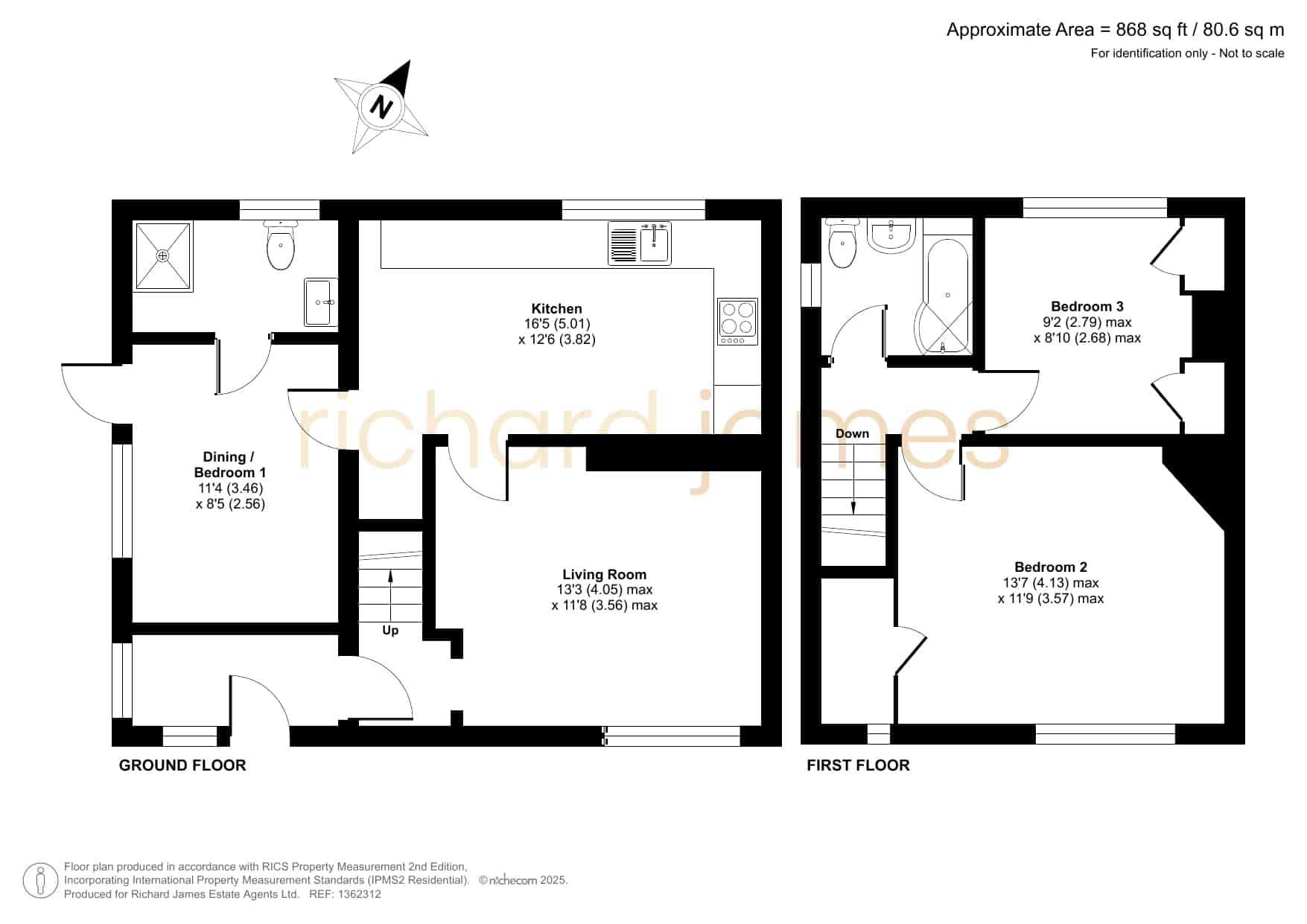
The accommodation on the ground floor briefly comprises Entrance porch, living room, Kitchen/dining room, Bedroom three and a shower room.

On the first floor, there are two further bedrooms and a family bathroom.

Externally, the property benefits from front gardens, a garage, and additional parking.

This property has been priced to sell and is offered with no onward chain.

Conveniently located, it provides easy access to the M4 and A419, as well as Wroughton’s busy High Street and village centre. Swindon’s Old Town, with its range of bars and restaurants, is also nearby.

An excellent opportunity for a first-time buyer or developer looking for a project.

Estimated Rental Income: £1100PCM


Council Tax Band: TBC

Floor Plans

Floorplan
image

Description:

Contact Information

View Listings

Enquire About This Property

Mortgage Calculator

Monthly
  • Deposit
  • Loan Amount
  • Monthly Mortgage Payment
£
%
%

Compare listings

Compare
James Sargeant
  • James Sargeant

Book a valuation with us

Please fill in the simple form and we will contact you to arrange a no-obligation valuation on your property as soon as we receive the details.

Not quite ready for a valuation? 

Thank you for signing up and referring a friend

Your details have been submitted successfully.