Toynbee Avenue, Tadpole Garden VIllage, Swindon, SN25, SN25 2QQ

  • Guide Price £325,000
Toynbee Avenue, Tadpole Garden VIllage, Swindon, SN25, SN25 2QQ
Sold STC North Swindon
Toynbee Avenue, Tadpole Garden VIllage, Swindon, SN25, SN25 2QQ
Toynbee Avenue, Tadpole Garden VIllage, Swindon, SN25, SN25 2QQ
  • Guide Price £325,000

Overview

  • House
  • Property Type
  • 3
  • Bedrooms
  • 2
  • Bathrooms

what3words Logowhat3words Property Location: unravel.slept.panel

Description

– GUIDE PRICE – £325,000 – £350,000 –

– PRIME TADPOLE GARDEN VILLAGE LOCATION –

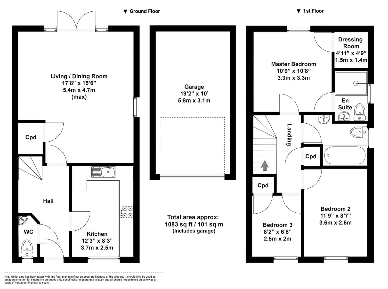
Located in the heart of Tadpole Garden Village, North Swindon you’ll find this well presented three bedroom semi detached home. In the catchment for well sought after schools and nearby to local amenities and the A419 it’s great for families.
The accommodation comprises, entrance hallway, cloakroom, modern fitted kitchen and spacious lounge with French doors to the rear garden.
Upstairs you’ll find the family bathroom and three bedrooms. With the master boasting the additional luxury of an en-suite shower room and walk in wardrobe.
Externally, the rear garden has been mostly laid to astro turf with an additional patio area behind the garage.
Driveway parking and a single garage to side complete this fantastic home.

Call now to arrange your viewing

EPC: B
COUNCIL TAX: D


Council Tax Band: TBC

Floor Plans

Floorplan
image

Description:

Contact Information

View Listings
North Swindon Estate Agents

Enquire About This Property

This property has now sold subject to contract. To view my other listings, click here.

Mortgage Calculator

Monthly
  • Deposit
  • Loan Amount
  • Monthly Mortgage Payment
£
%
%

Similar Listings

Compare listings

Compare
North Swindon Estate Agents
  • North Swindon Estate Agents

Book a valuation with us

Please fill in the simple form and we will contact you to arrange a no-obligation valuation on your property as soon as we receive the details.

Not quite ready for a valuation? 

Thank you for signing up and referring a friend

Your details have been submitted successfully.