Valley View, Aldbourne, SN8

  • Offers In Excess Of £485,000
Valley View, Aldbourne, SN8
For Sale Village & Country Homes Wroughton and Chiseldon
Valley View, Aldbourne, SN8
Valley View, Aldbourne, SN8
  • Offers In Excess Of £485,000

Overview

  • House
  • Property Type
  • 4
  • Bedrooms
  • 2
  • Bathrooms

what3words Logowhat3words Property Location: chicken.pounces.originals

Description

Welcome to 14 Valley View, an immaculately presented four-bedroom end of terrace
home, gracefully arranged across three floors and set in the heart of the enchanting village of Aldbourne. This residence combines timeless charm with modern comforts, offering a lifestyle of tranquillity and convenience.

Offers in excess of: £499,999

Welcome to 14 Valley View, an immaculately presented four-bedroom end of terrace
home, gracefully arranged across three floors and set in the heart of the enchanting village
of Aldbourne. This residence combines timeless charm with modern comforts, offering a
lifestyle of tranquillity and convenience.
Offers in excess of: £499,999
The Location:
Nestled within the sought-after Wiltshire village of Aldbourne, this home enjoys a truly
idyllic setting. The village boasts a welcoming community with a highly regarded primary
school, two inviting public houses, a post office with café, local shops, and even a
hairdresser. Surrounded by undulating countryside, Aldbourne offers the peace of rural life
whilst remaining superbly connected via the M4, providing swift access to Swindon,
Marlborough, Newbury and London.
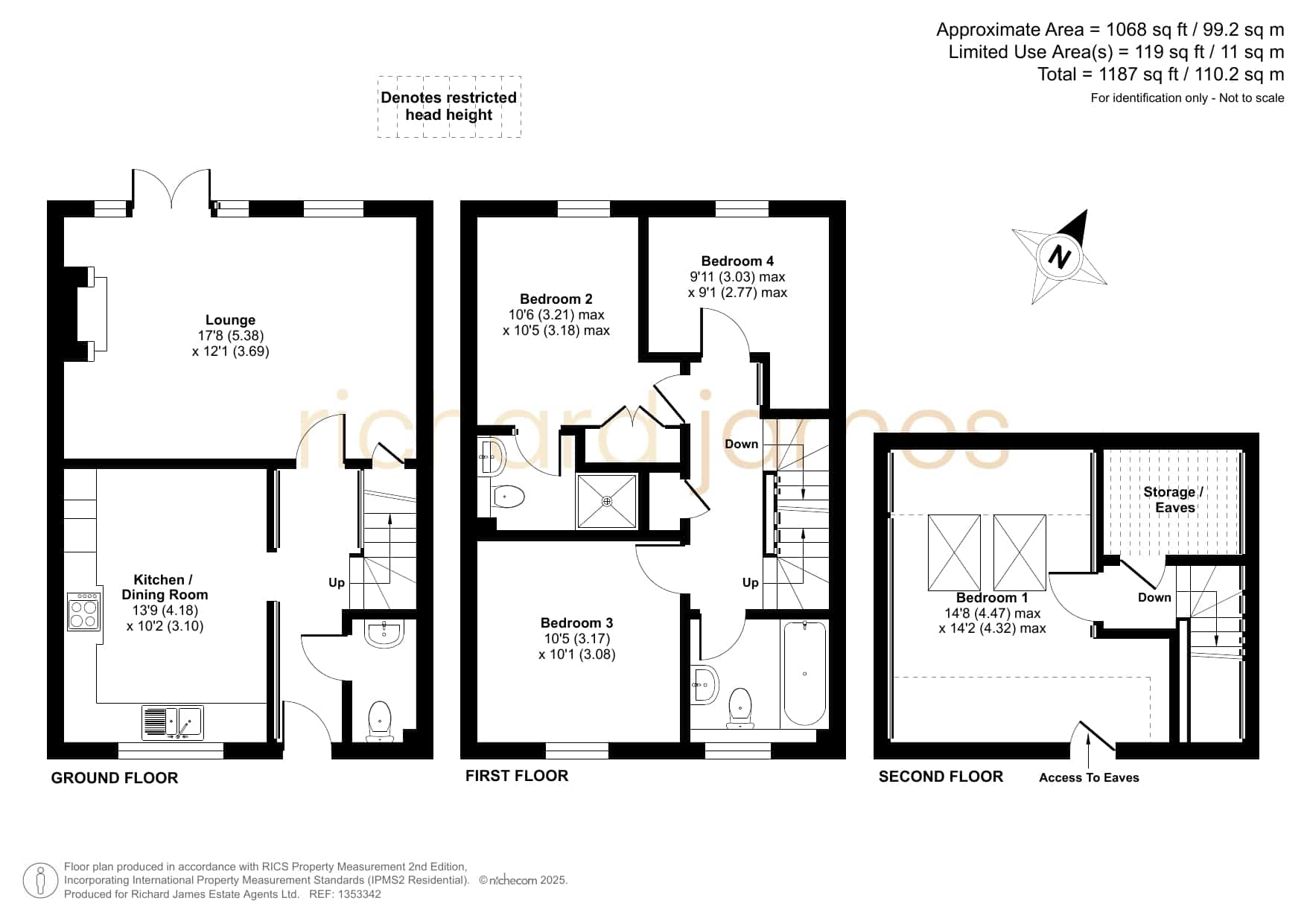
Ground Floor:
The front door opens into a welcoming hallway with a convenient downstairs cloakroom.
To the front lies a stylish, well-appointed kitchen, designed with both function and flair. To
the rear, the heart of the home awaits: a spacious living room bathed in natural light,
featuring a charming wood-burning stove and French doors leading seamlessly to the
garden—perfect for family living or entertaining guests.
First Floor:
The first floor offers a serene master suite, complete with a private ensuite shower room.
Two further bedrooms—one generous double and one single—share a beautifully finished
family bathroom, creating versatile accommodation for family, guests, or a home office.
Second Floor:
Ascending to the top floor, a striking loft room reveals panoramic views stretching over the
rolling Wiltshire countryside and the picturesque village below. This space is enhanced
with excellent storage, making it an adaptable retreat—ideal as a guest suite, studio, or
peaceful home office.
Exterior:
Steps descend gracefully to the front entrance, while the rear of the property opens onto adelightful garden combining patio and lawn. A private gate provides access to two
allocated parking spaces, offering both convenience and security.
In Summary:
14 Valley View is a home of exceptional quality, offering stylish and versatile living in one
of Wiltshire’s most desirable villages. Whether drawn by the stunning countryside, the
excellent local amenities, or the convenient transport links, this residence must be seen to
be fully appreciated.
To arrange your private viewing of this exceptional property, please contact us today.


Council Tax Band: TBC

Property Documents

epc.png

Floor Plans

Floorplan
image

Description:

Contact Information

View Listings
Lara Faber-Johnson

Enquire About This Property

Mortgage Calculator

Monthly
  • Deposit
  • Loan Amount
  • Monthly Mortgage Payment
£
%
%

Compare listings

Compare
Lara Faber-Johnson
  • Lara Faber-Johnson

Book a valuation with us

Please fill in the simple form and we will contact you to arrange a no-obligation valuation on your property as soon as we receive the details.

Not quite ready for a valuation? 

Thank you for signing up and referring a friend

Your details have been submitted successfully.