Overview

  • Office
  • Property Type
  • 0
  • Bedroom
  • 0
  • Bathroom

what3words Logowhat3words Property Location: guilty.angel.bind

Description

** COMMERCIAL/INVESTMENT OPPORTUNITY ** TENANT INSITU WITHIN THE LOWER GROUND FLOOR ** Built circa 1899 by the distinguished architect William Wallace, Trinity Hall stands as a testament to the architectural elegance of the late Victorian era. The building, characterised by its ornate detailing and robust construction, reflects the grandeur of the period and Wallace’s notable influence on early 20th-century design.Trinity Hall is a substantial property, boasting approximately 10,000 square feet of versatile space distributed over three floors. The building’s layout is adaptable, making it suitable for a variety of uses while retaining its historical charm.Presently, the lower floor of Trinity Hall is occupied by a day nursery, utilising the spacious and functional environment to provide a nurturing setting for young children. This arrangement showcases the building’s potential for accommodating educational or childcare facilities, blending historical architecture with modern-day utilit

** COMMERCIAL/INVESTMENT OPPORTUNITY ** TENANT INSITU WITHIN THE LOWER GROUND FLOOR **

Built circa 1899 by the distinguished architect William Wallace, Trinity Hall stands as a testament to the architectural elegance of the late Victorian era. The building, characterised by its ornate detailing and robust construction, reflects the grandeur of the period and Wallace’s notable influence on early 20th-century design. Trinity Hall is a substantial property, boasting approximately 10,000 square feet of versatile space distributed over three floors.

The building’s layout is adaptable, making it suitable for a variety of uses while retaining its historical charm. Presently, the lower floor of Trinity Hall is occupied by a day nursery, utilising the spacious and functional environment to provide a nurturing setting for young children. This arrangement showcases the building’s potential for accommodating educational or childcare facilities, blending historical architecture with modern-day utility.The expansive nature of Trinity Hall opens a plethora of possibilities for future use. With the proper planning permissions (STP), the property could be transformed into a larger nursery, capable of catering for more children and expanding its services. Alternatively, its ample space and adaptable floor plan make it an ideal candidate for conversion into multiple commercial offices, supporting diverse business needs while maintaining the building’s architectural integrity.

Planning Permission has been grated for a residential element; And the copyright can be purchase at an additional cost.


Council Tax Band: TBC

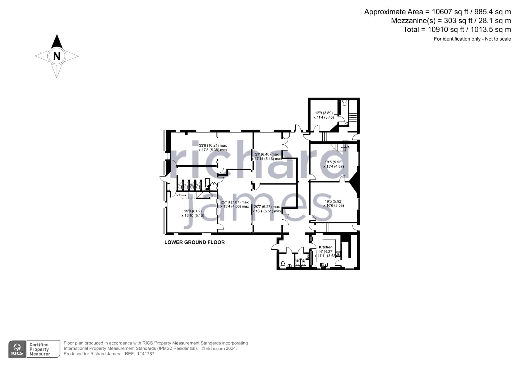
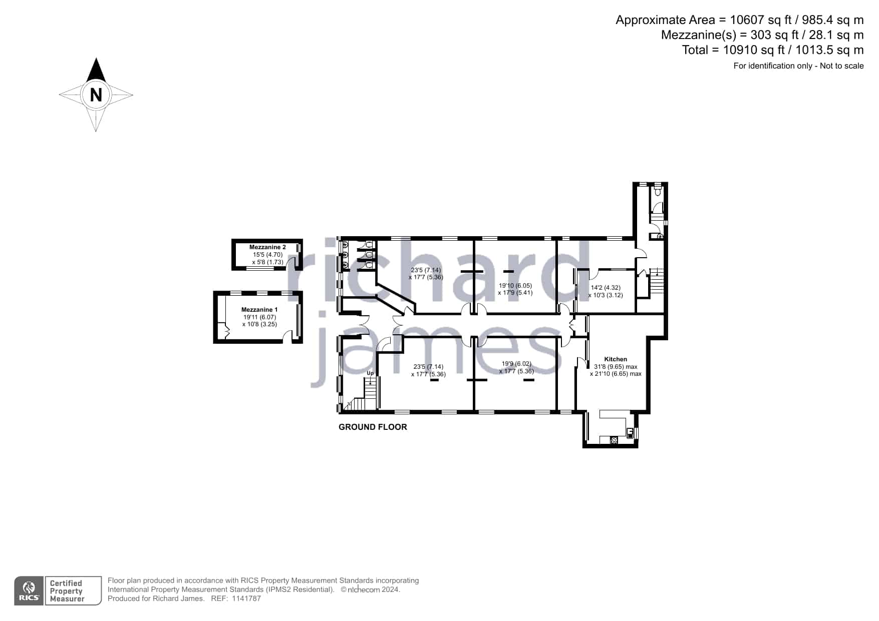
Floor Plans

Floorplan
image

Description:

Floorplan
image

Description:

Floorplan
image

Description:

Floorplan
image

Description:

Contact Information

View Listings

Enquire About This Property

Mortgage Calculator

Monthly
  • Deposit
  • Loan Amount
  • Monthly Mortgage Payment
£
%
%

Compare listings

Compare
Ellis Smith
  • Ellis Smith

Book a valuation with us

Please fill in the simple form and we will contact you to arrange a no-obligation valuation on your property as soon as we receive the details.

Not quite ready for a valuation? 

Thank you for signing up and referring a friend

Your details have been submitted successfully.