Winwick Road, Freshbrook, Swindon, SN5

  • Offers Over £290,000
Winwick Road, Freshbrook, Swindon, SN5
Sold STC West Swindon
Winwick Road, Freshbrook, Swindon, SN5
Winwick Road, Freshbrook, Swindon, SN5
  • Offers Over £290,000

Overview

  • House
  • Property Type
  • 3
  • Bedrooms
  • 1
  • Bathroom

what3words Logowhat3words Property Location: hangs.type.mash

Description

3 BEDROOM DETACHED, QUIET CUL DE SAC LOCATION, NO ONWARD CHAIN

Recently refurbished & enjoying a quiet a quiet cul de sac location, we are pleased to present this much improved 3 bedroom detached family home. The property benefits from uPVC double glazing, gas radiator central heating, cloakroom, sitting room, fitted kitchen/dining room, 3 bedrooms, re fitted family bathroom, garage, garden & driveway parking for numerous vehicles. The property is well located for all local amenities, shops, schools etc Lydiard Park & M4 J16. The property is offered with no onward chain & viewing is highly recommended by the vendor’s sole agent.


Council Tax Band: C

Property Documents

epc.png

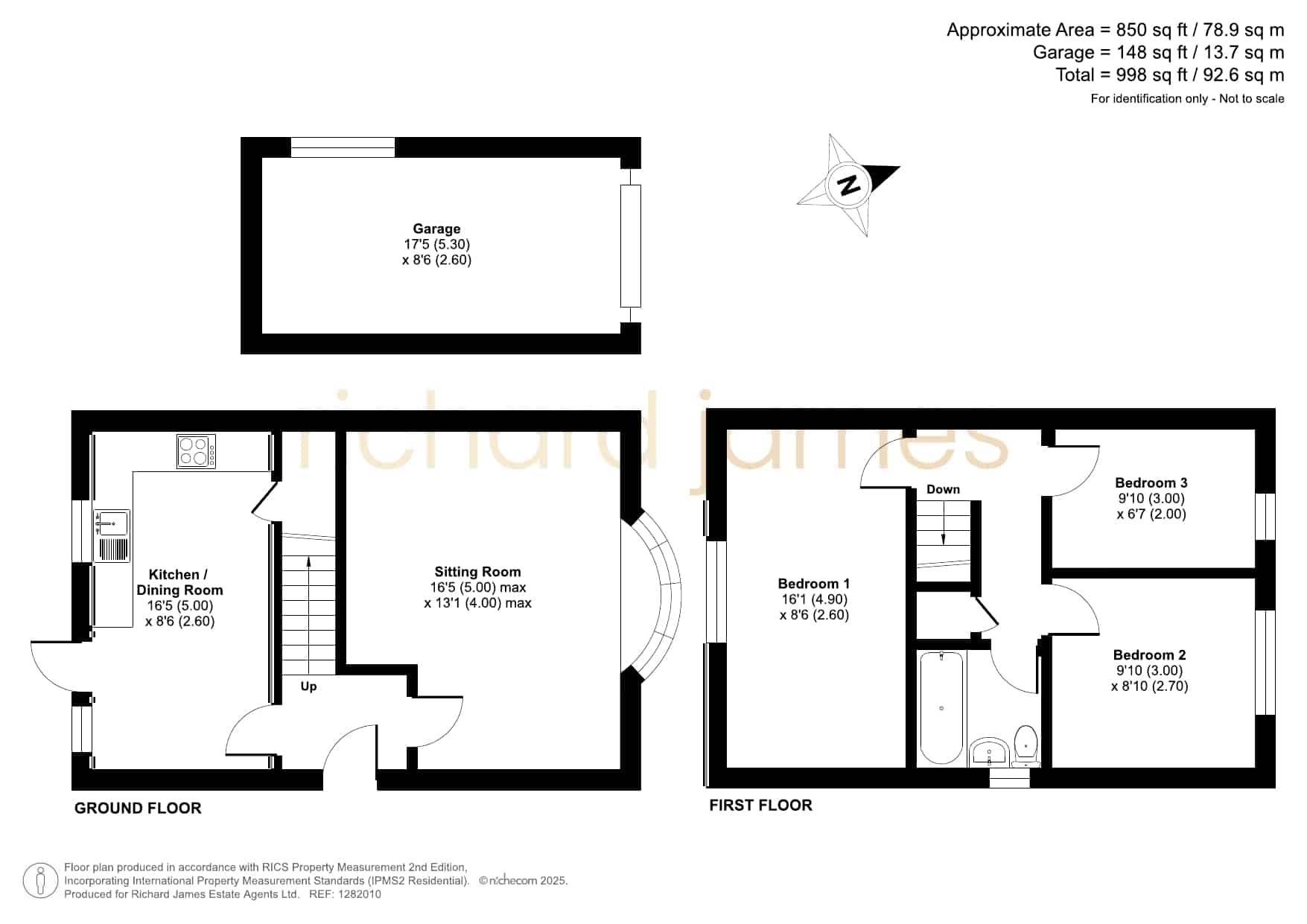
Floor Plans

Floorplan
image

Description:

Contact Information

View Listings

Enquire About This Property

This property has now sold subject to contract. To view my other listings, click here.

Mortgage Calculator

Monthly
  • Deposit
  • Loan Amount
  • Monthly Mortgage Payment
£
%
%

Similar Listings

Compare listings

Compare
Barrie Brocks
  • Barrie Brocks

Book a valuation with us

Please fill in the simple form and we will contact you to arrange a no-obligation valuation on your property as soon as we receive the details.

Not quite ready for a valuation? 

Thank you for signing up and referring a friend

Your details have been submitted successfully.