Woolner Road, Tadpole Garden Village, Swindon, SN25

  • Guide Price £350,000
Woolner Road, Tadpole Garden Village, Swindon, SN25
Sold STC North Swindon
Woolner Road, Tadpole Garden Village, Swindon, SN25
Woolner Road, Tadpole Garden Village, Swindon, SN25
  • Guide Price £350,000

Overview

  • House
  • Property Type
  • 3
  • Bedrooms
  • 2
  • Bathrooms

what3words Logowhat3words Property Location: breached.apple.short

Description

Guide Price £350,000-£365,000

Situated within the modern and sought after Tadpole Garden Village development, is this very well-presented three-bedroom semi-detached home. The property offers offers light-filled, open plan living space and good sized enclosed rear garden, which is easily accessed via the bi-folding doors. The property also features a Garage and Driveway Parking and is ideally located to take advantage of the amenities and schooling available locally.

Guide Price £350,000-£365,000

Situated within the modern and sought after Tadpole Garden Village development, is this very well-presented three-bedroom semi-detached home. The property offers offers light-filled open plan living space and good sized enclosed rear garden, which is easily accessed via the bi-folding doors and also features a Garage and Driveway Parking.

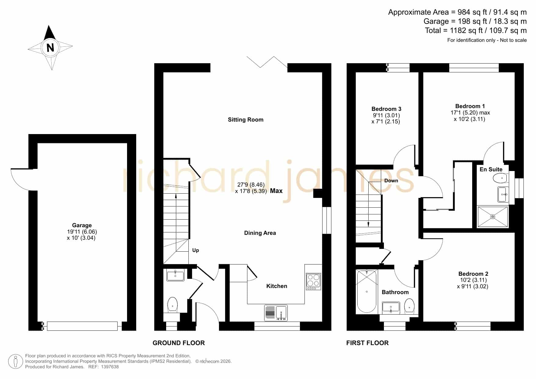
To the ground floor, there is an Entrance Hall and Cloakroom, door opening into the spacious and versatile open-plan living space, with a generous sized Kitchen with integrated appliances and flows seamlessly into the Dining Area and Living Room. Perfect for modern family living, with its triple aspect offering a light and airy feel throughout, with bifold doors open directly into the garden, creating an indoor-outdoor feel during the warmer months of the year.

To the first floor, you’ll find the three well-proportioned bedrooms, with Ensuite Shower Room and built-in wardrobes to Bedroom One, and wardrobes in Bedroom Two, as well as a Family Bathroom, with modern white suite.

Outside, to the rear, a large patio area leads out from the house, ideal for relaxing and bbq’s, opening to the lawn area, with shrub borders and selection of trees providing a good degree of privacy and personal door into the Garage. With the front garden, enclosed by hedging with path leading to the front door and driveway to side, providing parking for two vehicles, as well as giving access to the Garage.

Further features include PVCu Double Glazing, Gas Radiator Heating and viewing is highly recommended to fully appreciate this lovely family home.


Council Tax Band: D

Property Documents

Floor Plans

Floorplan
image

Description:

Contact Information

View Listings

Enquire About This Property

This property has now sold subject to contract. To view my other listings, click here.

Mortgage Calculator

Monthly
  • Deposit
  • Loan Amount
  • Monthly Mortgage Payment
£
%
%

Similar Listings

Compare listings

Compare
Alex Hudson
  • Alex Hudson

Book a valuation with us

Please fill in the simple form and we will contact you to arrange a no-obligation valuation on your property as soon as we receive the details.

Not quite ready for a valuation? 

Thank you for signing up and referring a friend

Your details have been submitted successfully.