Aldbourne Road, Baydon, SN8

  • Guide Price £475,000
Aldbourne Road, Baydon, SN8

Description

A spacious, well-balanced four-bedroom home in the heart of Baydon, offering flexible living space, off-road parking for multiple vehicles, and a great-size garden. Ideal for families or anyone looking for village life with excellent transport links, this is a solid, well-located property with plenty of appeal.

A spacious four-bedroom link-detached home set in a quiet spot within the desirable village of Baydon, offering excellent living space, a great-size plot, and parking for multiple vehicles. This is a solid, well-proportioned property with a layout that works brilliantly for families or anyone looking for space, flexibility, and a more rural lifestyle with great connectivity.

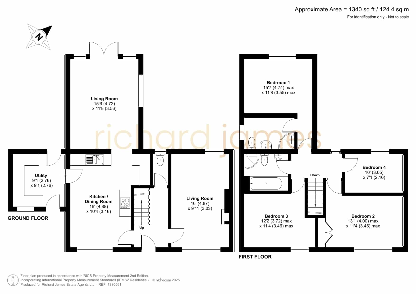
Inside, the house is arranged around a wide entrance hallway, with a downstairs WC and stairs rising centrally. To the right is a cosy, front-facing living room with a multi-fuel log burner, making it a great space for evenings in. To the left is a generous kitchen that opens out into a bright, full-width dining and family room at the rear – a brilliant day-to-day living space with garden access and plenty of room to adapt as needs change. The separate utility room keeps everything practical and tucked away, with side access to outside.

Upstairs, there are four bedrooms, including three comfortable doubles, and the main bedroom features its own en-suite. A well-kept family bathroom serves the remaining rooms. The layout upstairs is balanced, and the bedrooms are all well-sized.

The garden is a real plus – wide, private and laid to lawn – giving you a blank canvas to landscape or enjoy as-is. At the front, the property benefits from off-street parking for three to four vehicles, ideal for families or visitors.

Baydon is a sought-after village with a strong sense of community, well-served by a local shop/post office, pub/restaurant, church, and a popular primary school. Surrounded by countryside and sitting within the North Wessex Downs AONB, it’s perfect for those who want a quieter pace without losing access to key routes. The M4 (J14) is just a short drive away, and both Marlborough and Swindon are within easy reach.

This is a great opportunity to secure a well-laid-out family home in a genuinely desirable village location.


Council Tax Band: TBC

Property Documents

epc.png

Floor Plans

Floorplan
image

Description:

Contact Information

View Listings

Enquire About This Property

Mortgage Calculator

Monthly
  • Deposit
  • Loan Amount
  • Monthly Mortgage Payment
£
%
%

Compare listings

Compare
Alex Hornby
  • Alex Hornby

Book a valuation with us

Please fill in the simple form and we will contact you to arrange a no-obligation valuation on your property as soon as we receive the details.

Not quite ready for a valuation? 

Thank you for signing up and referring a friend

Your details have been submitted successfully.