Course Meadow, Purton, SN5 4GL

  • Guide Price £375,000
Course Meadow, Purton, SN5 4GL
Sold STC Village & Country Homes West Swindon
Course Meadow, Purton, SN5 4GL
Course Meadow, Purton, SN5 4GL
  • Guide Price £375,000

Overview

  • House
  • Property Type
  • 4
  • Bedrooms
  • 2
  • Bathrooms

what3words Logowhat3words Property Location: awards.walked.insurance

Description

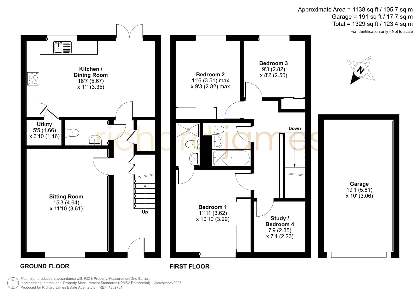
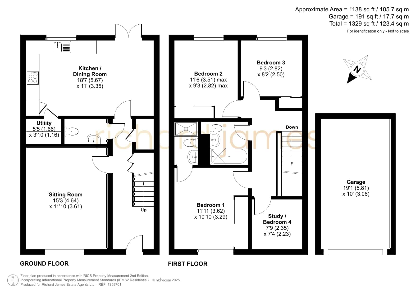
This great 4-bedroom detached house offers spacious family living. Featuring a downstairs loo, a living room and kitchen diner, and upstairs includes a bedroom with an ensuite, plus a family bathroom. Outside, enjoy a nice rear garden, garage, and driveway parking, with side access. Conveniently located near local parks, schools, pubs, and excellent transport links with access to J16 of M4. Perfect for modern family life in a sought-after area.

Welcome to this delightful four-bedroom detached home, impeccably designed to offer both style and functionality for modern family living. As you step inside, you are greeted by a bright and spacious living room, seamlessly connecting to an open-plan kitchen diner, perfect for both entertaining and day-to-day family meals. The ground floor also features a convenient downstairs loo, enhancing the practicality of this welcoming space. The flow of this home offers great versatility, ensuring comfort and convenience for all its inhabitants.

Ascending to the first floor, the property boasts four generous bedrooms, providing ample space for a growing family or accommodating guests. The master bedroom is a true sanctuary, complete with its own ensuite bathroom, ensuring privacy and luxury. The remaining bedrooms share a well-appointed family bathroom, catering to all family needs. The overall layout of the upper floor maintains a balance of intimacy and accessibility, with each room offering a peaceful retreat at the end of the day.

The exterior of this home is equally appealing, with a lovely rear garden that offers a perfect outdoor haven for relaxation and play. This private space is accessible via side access, a practical advantage for gardening enthusiasts or those with pets. Additionally, the property benefits from a garage and driveway parking, providing ample space for multiple vehicles. Situated in a desirable area, this home enjoys proximity to local parks, well-regarded schools, and charming pubs, offering a wonderful community atmosphere. Excellent bus routes and convenient access to Junction 16 of the M4 make commuting or travelling further afield a breeze. Don’t miss the opportunity to make this wonderfully appointed detached house your family’s next home.


Council Tax Band: TBC

Property Documents

epc.png

Floor Plans

Floorplan
image

Description:

Contact Information

View Listings

Enquire About This Property

Mortgage Calculator

Monthly
  • Deposit
  • Loan Amount
  • Monthly Mortgage Payment
£
%
%

Similar Listings

Compare listings

Compare
Luke Boles
  • Luke Boles

Book a valuation with us

Please fill in the simple form and we will contact you to arrange a no-obligation valuation on your property as soon as we receive the details.

Not quite ready for a valuation? 

Thank you for signing up and referring a friend

Your details have been submitted successfully.