Masefield, Royal Wootton Bassett, SN4

  • Guide Price £220,000
Masefield, Royal Wootton Bassett, SN4

Description

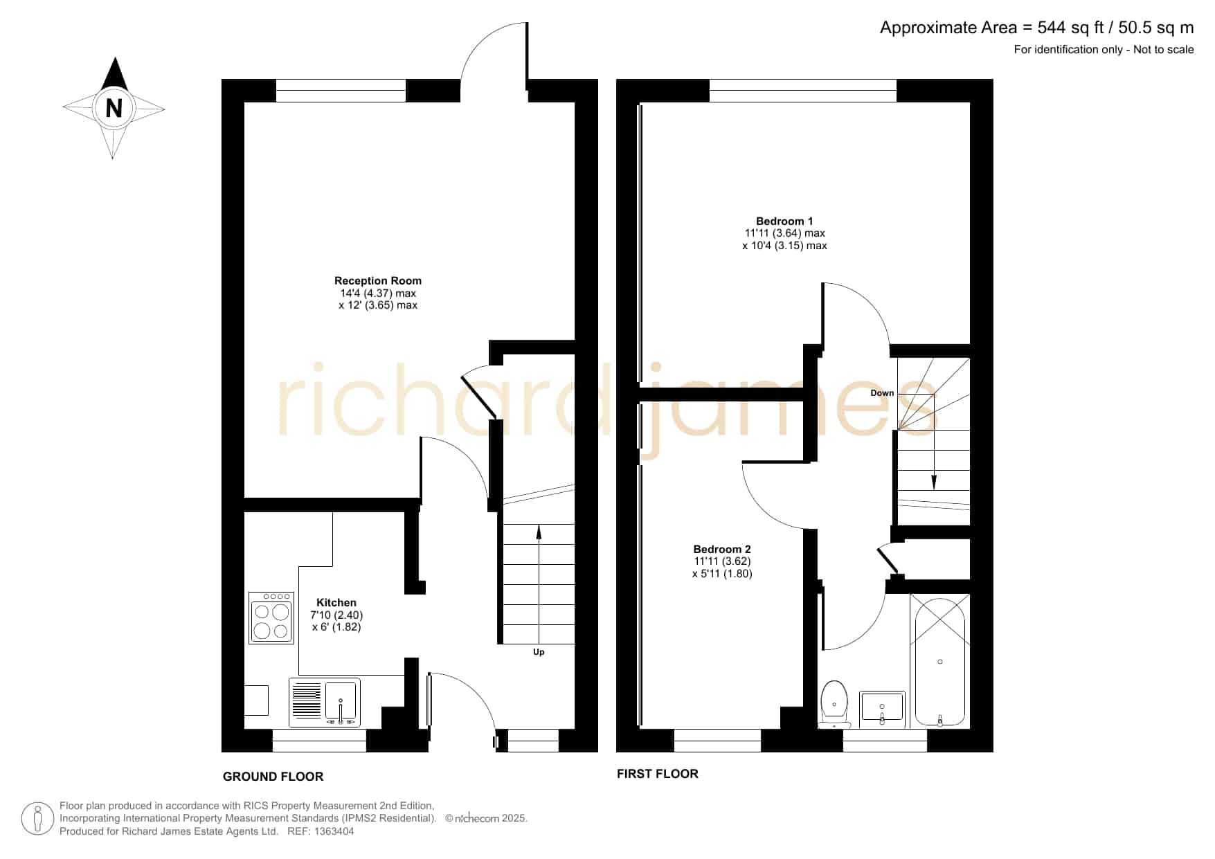
A delightful two-bedroom home set in a sought-after cul-de-sac on the Poets Estate. Deceptively spacious, the property offers an entrance hall, two bedrooms, bathroom, fitted kitchen, and a generous living/dining room. Outside features a private rear garden, mainly laid to lawn with access, and allocated parking to the side. The home benefits from gas central heating and is offered with no onward chain.

A brilliant two-bedroom home tucked away in a desirable cul-de-sac on the Poets Estate.

Deceptively spacious, this lovely property features an entrance hall, two well-proportioned bedrooms, a modern bathroom, a fitted kitchen, and a generous living/dining room offering plenty of natural light. To the rear, there is a private garden — mainly laid to lawn — with rear access, while allocated parking is conveniently located to the side of the house. The property benefits from gas central heating and is offered for sale with no onward chain.

Ideally located in the vibrant market town of Royal Wootton Bassett, the home offers easy access to the M4 and Swindon railway station, providing direct links to London Paddington. Excellent local schools, including Lydiard Millicent CofE Primary, Bradon Forest Secondary School, and Cirencester College, are all within easy reach. The town itself boasts a fantastic selection of shops, cafés, restaurants, and leisure facilities, all within a friendly and welcoming community — making this an ideal home for first-time buyers, downsizers, or investors alike.


Council Tax Band: TBC

Property Documents

epc.png

Floor Plans

Floorplan
image

Description:

Contact Information

View Listings

Enquire About This Property

Mortgage Calculator

Monthly
  • Deposit
  • Loan Amount
  • Monthly Mortgage Payment
£
%
%

Compare listings

Compare
Daisy Costin
  • Daisy Costin

Book a valuation with us

Please fill in the simple form and we will contact you to arrange a no-obligation valuation on your property as soon as we receive the details.

Not quite ready for a valuation? 

Thank you for signing up and referring a friend

Your details have been submitted successfully.