Radnor Street, Kingshill, Swindon, SN1 3PR

  • Offers In Excess Of £220,000
Radnor Street, Kingshill, Swindon, SN1 3PR
For Sale Old Town Swindon
Radnor Street, Kingshill, Swindon, SN1 3PR
Radnor Street, Kingshill, Swindon, SN1 3PR
  • Offers In Excess Of £220,000

Overview

  • House
  • Property Type
  • 3
  • Bedrooms
  • 1
  • Bathroom

what3words Logowhat3words Property Location: tuned.city.expand

Description

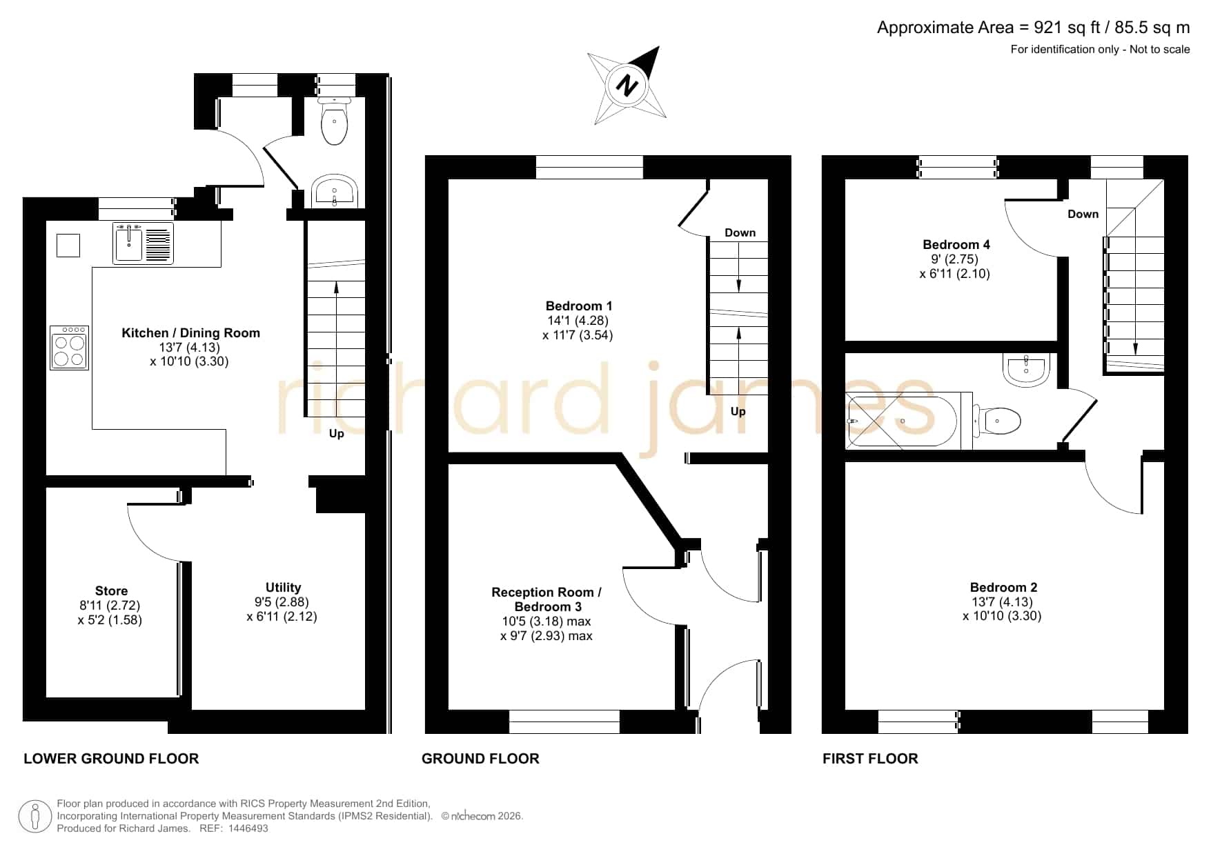
This stylish 3-bedroom terraced house offers a snug sitting room, which can serve as a third bedroom, a tastefully decorated main reception room, and a kitchen breakfast room with utility space. Upstairs are two bedrooms sharing a modern bathroom. The private rear garden is perfect for entertaining. Ideally located near local amenities and transport links such as the train station, M4, and J16.

RICHARD JAMES MEMBER OF STAFF HOME

**CHAIN FREE**
Welcome to this stylish three-bedroom terraced home, located in a much sought-after area that combines the convenience of urban living with the charm of a well-established community. The ground floor invites you through an elegant entrance hall, leading to the left where you’ll find a snug sitting room that can easily be transformed into a third bedroom if needed. From here, access the main reception room, which boasts tasteful decoration and serves as the heart of the home, perfect for both relaxation and entertaining. The spacious kitchen breakfast room is conveniently located downstairs, offering ample utility space and a separate store room. This area seamlessly connects to the private rear garden, which features a delightful combination of patio and green space, ideal for outdoor entertainment and family gatherings.

The property benefits from two well-proportioned bedrooms upstairs, both sharing a sleek and modern family bathroom. These sleeping quarters ensure restful nights and are designed with comfort in mind, offering cosy yet practical living solutions. The overall internal area offers approximately 85 square metres of well-thought-out space, providing a balance of functionality and aesthetics for modern living. Whether you’re upsizing, downsizing, or simply seeking a new chapter in a vibrant community, this home offers versatility to suit your needs.

Situated in a prime location, this home is just a short stroll from a variety of local amenities including quaint pubs, well-regarded schools, and essential shops. The charming old town is nearby, offering a range of cultural and leisure activities. For commuters, the location is ideal; the property is in close proximity to the local train station and offers easy access to major transport links such as the M4 and Junction 16, making travelling both effortless and efficient. This property not only offers a beautiful home but also a lifestyle enriched by a supportive community and convenient amenities, ensuring it appeals to a wide range of buyers.

RICHARD JAMES MEMBER OF STAFF HOME


Council Tax Band: TBC

Floor Plans

Floorplan
image

Description:

Contact Information

View Listings

Enquire About This Property

Mortgage Calculator

Monthly
  • Deposit
  • Loan Amount
  • Monthly Mortgage Payment
£
%
%

Similar Listings

Compare listings

Compare
Luke Boles
  • Luke Boles

Book a valuation with us

Please fill in the simple form and we will contact you to arrange a no-obligation valuation on your property as soon as we receive the details.

Not quite ready for a valuation? 

Thank you for signing up and referring a friend

Your details have been submitted successfully.