Washpool, Swindon SN5 3PN

  • Guide Price £260,000
Washpool, Swindon SN5 3PN
For Sale West Swindon
Washpool, Swindon SN5 3PN
Washpool, Swindon SN5 3PN
  • Guide Price £260,000

Overview

  • House
  • Property Type
  • 3
  • Bedrooms
  • 1
  • Bathroom

what3words Logowhat3words Property Location: tigers.suggested.gamer

Description

***GUIDE PRICE £260,000 – £275,000***

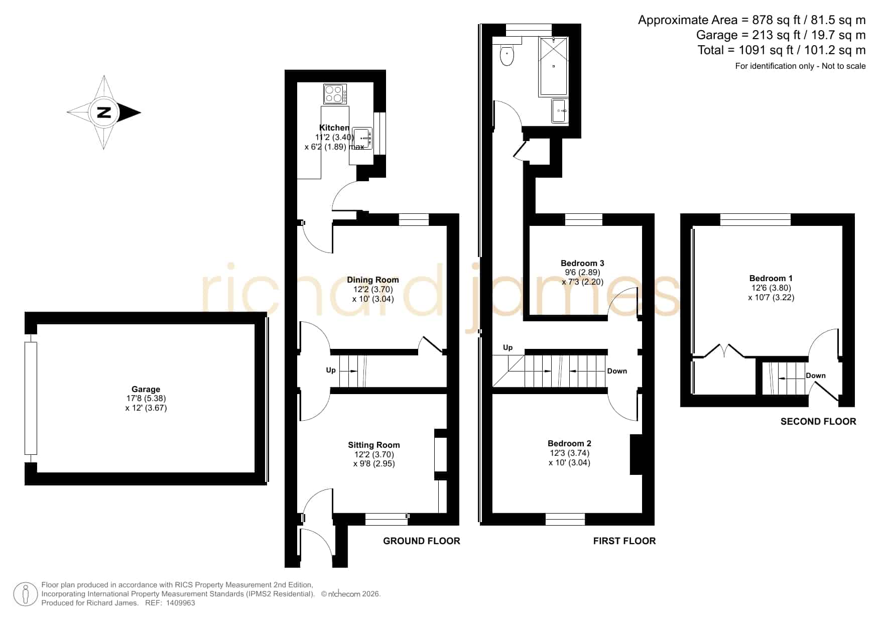
Offered chain free, this charming terraced cottage benefits from two versatile reception rooms and a kitchen opening to an enclosed rear garden. The home features a luxury refitted bathroom and three bedrooms—two on the first floor and one on the second. Located near West Swindon, it offers a larger-than-average garage, open countryside nearby, and excellent local amenities.

***GUIDE PRICE £260,000 – £275,000***

Situated on a lane just outside West Swindon, this delightful terraced cottage offers a perfect blend of traditional charm and modern convenience. The property boasts two versatile reception rooms that provide flexibility for living, dining, or even a home office setup. A tastefully refitted luxury bathroom suite enhances the home’s appeal, offering a touch of elegance and comfort. The kitchen, designed for practicality, has convenient access to the rear garden, making al fresco dining and outdoor entertaining a breeze.

Upstairs, the property features two well-proportioned bedrooms on the first floor, offering comfortable spaces for rest and relaxation. The third bedroom is situated on the second floor, providing a private and cosy retreat, ideal for guests or use as a study or hobby room. The property’s exterior has been recently decorated, creating an inviting façade that adds to its overall charm and appeal.

Outside, the enclosed rear garden presents a wonderful opportunity for those with a green thumb. Mainly laid to stones on two levels, it offers a blank canvas for you to create your own personal oasis. For those needing extra storage or workshop space, a larger than average garage is conveniently located just across the lane. The location offers the best of both worlds, with immediate access to local amenities, shops, and excellent road links, while still being close to open countryside perfect for leisurely walks or scenic explorations. With its combination of character, versatility, and potential, this cottage presents a truly inviting home.


Council Tax Band: B

Video

Floor Plans

Floorplan
image

Description:

Contact Information

View Listings
Emma Middleton

Enquire About This Property

Mortgage Calculator

Monthly
  • Deposit
  • Loan Amount
  • Monthly Mortgage Payment
£
%
%

Similar Listings

Compare listings

Compare
Emma Middleton
  • Emma Middleton

Book a valuation with us

Please fill in the simple form and we will contact you to arrange a no-obligation valuation on your property as soon as we receive the details.

Not quite ready for a valuation? 

Thank you for signing up and referring a friend

Your details have been submitted successfully.