John Alder Close, Chiseldon, Swindon, SN4

  • Guide Price £300,000
John Alder Close, Chiseldon, Swindon, SN4
For Sale Village & Country Homes Wroughton and Chiseldon
John Alder Close, Chiseldon, Swindon, SN4
John Alder Close, Chiseldon, Swindon, SN4
  • Guide Price £300,000

Overview

  • House
  • Property Type
  • 3
  • Bedrooms
  • 2
  • Bathrooms

what3words Logowhat3words Property Location: tried.posts.melt

Description

Guide Price £300,000 to £325,000

Situated in the heart of Chiseldon, this well-presented three-bedroom property offers excellent access to the A419 motorway and the Great Western Hospital, making it ideal for commuters and families alike.

Guide Price £300,000 to £325,000

Situated in the heart of Chiseldon, this well-presented three-bedroom property offers excellent access to the M4 motorway, the A419 and the Great Western Hospital, making it ideal for commuters and families alike.

The home is also conveniently located within easy reach of Three Trees Farm Shop, as well as beautiful countryside walks and a selection of charming village pubs.

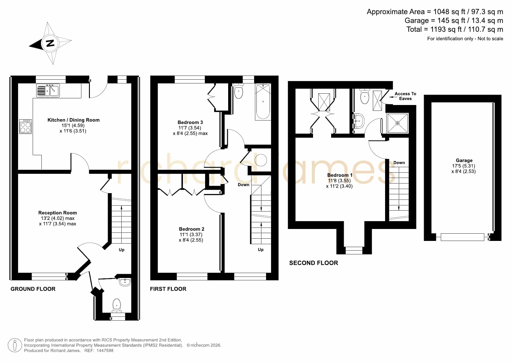
The property itself is thoughtfully arranged across three floors. Upon entering, you are welcomed by an entrance hallway leading to a convenient cloakroom, a comfortable living room, and a spacious kitchen/dining room—perfect for both everyday living and entertaining.

The first floor comprises two well-proportioned bedrooms, along with a fully fitted family bathroom suite. Occupying the entire second floor is the impressive master suite, featuring a walk-in wardrobe and a private ensuite shower room.

Externally, the property benefits from enclosed gardens, a garage, and driveway parking, as well as an electric vehicle charging point.

Further features include built-in wardrobes in all bedrooms, gas central heating and double glazing throughout.

Viewing is highly recommended to fully appreciate everything this home has to offer.


Council Tax Band: D

Property Documents

7johnalderclosepropertybrochure2

Floor Plans

Floorplan
image

Description:

Contact Information

View Listings

Enquire About This Property

Mortgage Calculator

Monthly
  • Deposit
  • Loan Amount
  • Monthly Mortgage Payment
£
%
%

Compare listings

Compare
Alex Hornby
  • Alex Hornby

Book a valuation with us

Please fill in the simple form and we will contact you to arrange a no-obligation valuation on your property as soon as we receive the details.

Not quite ready for a valuation? 

Thank you for signing up and referring a friend

Your details have been submitted successfully.